Расчёт лестницы

Лестница на стальном каркасе ЛЕС-05



Код товара: 1637

У лестницы  4 вариантов размера

Доставка в Севастополь: от 3-х дней

Условия доставки

Высота лестницы:

Материал ступеней:

87 510

+

Характеристики:

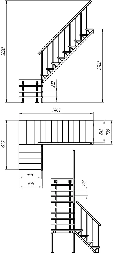
Высота шага 212 мм

Ширина марша 900/845 мм

Толщина ступени 40 мм

Угол наклона 45 °

Габариты в плане 2805 х 1845 мм

Описание:

7477c14bb3c72ac208d805860a7a14f6.jpg Высота от пола нижнего этажа до пола верхнего этажа:    2760 мм
Минимальный проем 2ого этажа: 2805 х 900 мм
Габариты в плане: 2805 х 1845 мм
Размер поворотной площадки: 1200 х 900 мм
Возможен поворот: направо, налево
Материал балясины: стальная труба
Материал опоры крепления под ступень: металл
Материал перил, ступеней: древесина хвойных пород
Угол наклона марша 45°
Количество ступеней: 13 шт
Ширина марша: 900 / 845 мм
Толщина ступеней: 40 мм
Высота шага: 212 мм
Максимальная нагрузка на ступень: 200 кг

Базовый цвет:

Базовый комплект включает в себя деревянные элементы лестницы, подступенки и ограждения без какого-либо покрытия. Вы можете заказать у нас покраску лестницы в цвета, отвечающие особенностям вашего помещения. 

Самостоятельная сборка
Лестница поставляется в разобранном виде, упакованная в два ящика. Монтаж производится силами двух человек, в соответствии с указаниями, приведёнными в паспорте лестницы.

Если вы не уверены в том, что эта лестница подойдет к условиям вашего помещения, обратитесь к специалисту за консультацией по телефону или с помощью формы "помочь с выбором" , "заказать замер" (кнопки на нижней панели)

Упаковка:

Масса брутто 270

Количество упаковок 2

Покраска

от 22 770

Любой цвет, подбор по образцу. Надёжные средства. Качественное нанесение

подробнее
Стоимость монтажа

Монтаж:

от 48 420

Качественный монтаж опытными специалистами с учётом всех нюансов

Подробнее

Покраска деревянных элементов лестницы

от 22 770

Вы можете заказать у нас профессиональную покраску деревянных элементов лестницы.
Ниже представлена палитра наиболее популярных расцветок. Выкрасы выполнены на сосне.
На образцы нанесен 1 слой краски и 2 слоя воска.
Обратите внимание! Оттенок на экране может отличаться от ожидаемого, мы настоятельно рекомендуем посетить наш шоу-рум для ознакомления с образцами выкрасов.
Всю доступную палитру на разных породах дерева можно посмотреть, перейдя по этой ссылке

8510 Белый

8535 Сталь

8532 Орех

8533 Дуб копчёный

8539 Коричневый

8542 Тик тёмный

8543 Мербау

8544 Дуб бразильский

8546 Венге

8548 Дуб натуральный

Шоколад (Лайнос)

8536 Каппучино

8543 Сахара

Любой ваш цвет

Монтаж лестницы

Наша компания осуществляет профессиональный монтаж лестниц любого вида сложности. В нашем портфолио более 300 благополучно установленных интерьерных и наружных лестниц.

Монтаж за 1-2 дня

Бережная точная сборка лестницы

Увезём за собой мусор

Вернём оплату замера при монтаже нашей лестницы

от 48 420

Указана цена исключительно на монтаж лестницы, любые дополнительные работы, связанные с несовершенством стен, углов, устранением дополнительных препятствий при установке лестницы - изменят стоимость работ.
Так же, на стоимость влияет удалённость объекта. Точную стоимость установки лестницы мы можем объявить только после осмотра помещения специалистом и совершения необходимых замеров.

Дополнительно к этой лестнице

Похожие

Ранее вы смотрели